Wohnhaus Guerickestraße 42, 10587 Berlin-Charlottenburg
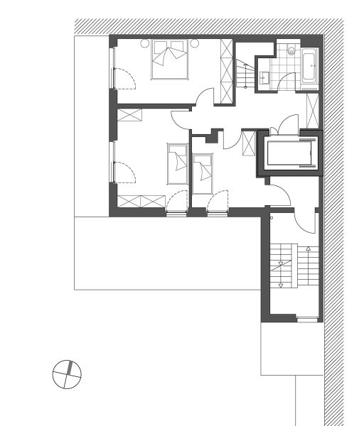
Planung eines Hofgebäudes mit 6 Wohnungen
mit Terrassen und einem Dachgarten
Aussenanlagen: Höhn Landschaftsarchitektur
Leistungsphase 1 - 5
2022 - 2023
Planung eines Hofgebäudes mit 6 Wohnungen
mit Terrassen und einem Dachgarten
Aussenanlagen: Höhn Landschaftsarchitektur
Leistungsphase 1 - 5
2022 - 2023